大人のリゾートライフを楽しめる
木と暮らす高性能住宅
#Model house
【断熱等級6×全館空調】堅田リアルサイズモデルハウス
飽きのない住まいのデザインを学びたい方にぴったりのアイデアが詰まったモデルハウス。
静かにゆったりとした時間が流れる別荘をイメージしたコンセプトモデルハウス。
上質な素材でまとめたインテリアとゆとりある広々とした空間で大人のリゾートライフをご提案します。
また、全国で話題の”全館空調”を搭載。
エアコン一台で家中の温度差が無くなり どこにいても快適な住まいをぜひご体感ください。
大手ハウスメーカーでは展示場は豪華ながらも実は設計面で制限が多いものです。
菱和ホームではモデルハウスもお客様のご自宅も、1級建築士がイチからオリジナルで設計を行っております。
1級建築士のこだわりが詰まった、大手ハウスメーカーにはできない フルオーダー住宅の神髄をご覧ください。
| 住所 | 滋賀県大津市堅田1丁目9−14 |
|---|---|
| 電話番号 | 0120-012-785 |
| 営業時間 | 10:00~18:00(水曜定休) |
| 備考 | - |
Gallery
フォトギャラリー
【全館空調搭載】堅田 リアルサイズモデルハウスの見どころポイント

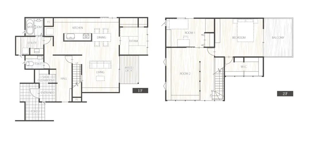
【モデルハウスの間取り図】忙しい日常を癒す、動線と空間の“ちょうどいい”。
広々としたリビングに、心安らぐ和室とテラス。
自然と調和しながら、家族それぞれの時間も大切にできる、
“ちょうどいい”距離感が心地よい住まいです。

床と天井の木目が美しいLDK 心地よい空間
天井や床には様々な木目をランダムに配置。
奥行きや広さ、木のぬくもりが感じられます。
フローリングにはバーチの無垢材をセレクトしました。
熱処理することで、無塗装ですがツヤがあり、キズや汚れにも強い素材です。

使いやすい大人気のキッチンデザインと6mの収納スペース
リビング収納とカップボードを兼ねたカウンター収納は、キッチンカウンターとデザインを統一してスタイリッシュに。
住まいの快適性はもちろんのこと、大容量の収納と使いやすい家事動線も両立させた住まいをご提案いたします。

和室は和紙製の畳で 夏は涼しく・冬は木の温もりを感じられる安らぎの空間に
小さいお子様の遊び場や、桜の床柱や一枚板の堀り込みカウンター、格子戸や坪庭をながめる雪見障子もあり、ゲストルームとしても。

静粛で心地よい空気が包み込む くつろぎの寝室と楽しい子供部屋
寝室はカーペットや間接照明で、ホテルライクな雰囲気を。
無垢のパイン材がさらっとして気持ちのいい子供部屋は、クロスや棚など自由に組み合わせて、お子さまの個性光るお部屋に。
高気密・高断熱仕様の効果で睡眠の質の改善に繋がる寝室です。

お家づくりの参考になる見どころは他にも随所に
光の採り方や素材の使い方、セレクトオーダーが可能な設備など、画像を見るだけでは分からない空間の感じ方や質感、サイズ感を実体験できます。