Plan

厳選人気プラン

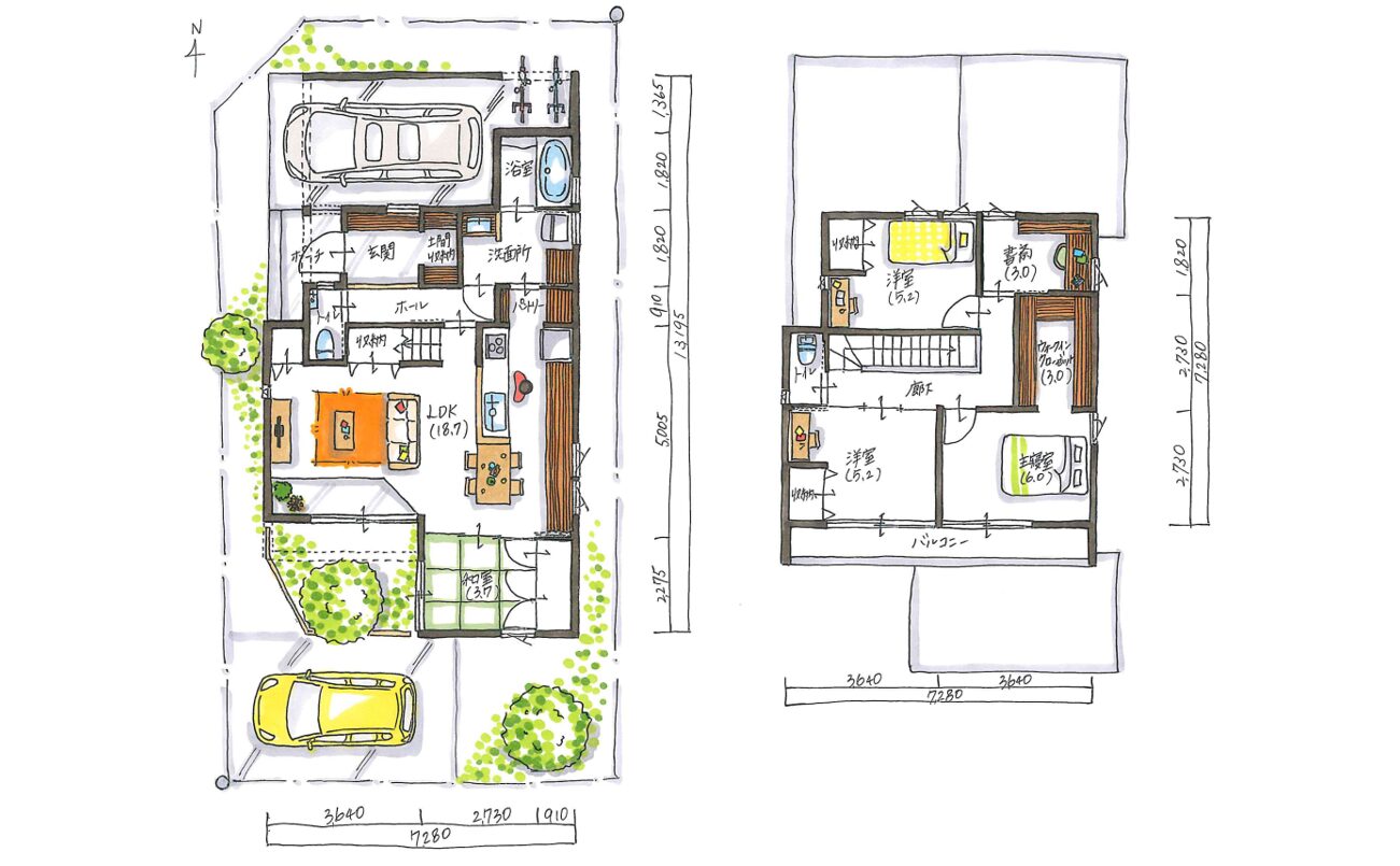
39.20坪プラン

回遊動線で家事ラクのインナーガレージのある住まい

坪数 39.20坪 間取り 3LDK
価格 2,750万円 想定構成 -

お客様のベストプランを提案いたします。
私たちにお任せください。

お客様のベストプランを提案いたします。私たちにお任せください。

ホームページに掲載しているプランの他にも
店舗には注文住宅プランが多数ございます。
展示場に来場いただくとご要望にピッタリのプランを
ご提案させていただきます。